Casa semindipendente in vendita

Prato, Via Traversa Cellerese - La Querce
€ 255.000
4 locali 4 locali
90 Mq 90 Mq
1 bagno 1 bagno

Casa semindipendente in vendita

Prato, Via Traversa Cellerese - La Querce

Descrizione annuncio

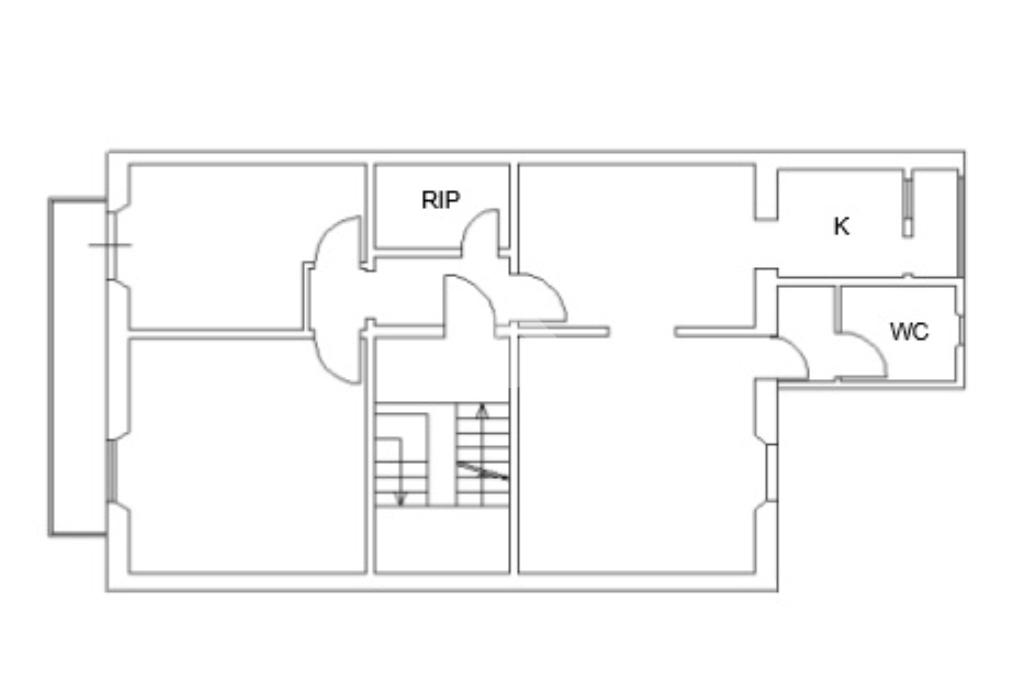
La Querce – Via Traversa Cellerese

Proponiamo in vendita, in contesto tranquillo e verdeggiante ma a pochi minuti da tutti i principali servizi, appartamento situato all’primo piano di una bifamiliare ristrutturato nel 2010.

L’abitazione si apre su una zona giorno ben distribuita, composta da cucina tinello separata con accesso diretto al balcone, collegata a una piacevole zona abitabile, ideale per pranzi e cene in famiglia, e da una sala luminosa.

La zona notte comprende una camera matrimoniale, una camera singola con accesso al balcone, oltre a un comodo ripostiglio. Il bagno è preceduto da un antibagno adibito a zona lavanderia, soluzione pratica e funzionale per l’organizzazione degli spazi.

L’immobile gode di affacci aperti sul verde, inserito in un contesto residenziale silenzioso e riservato, con ampia facilità di parcheggio nelle immediate vicinanze.

La proprietà fa parte di un fabbricato semindipendente per questo motivo non presnta alcun tipo di spese condominiali. Ingresso a comune.

Soluzione ideale per chi cerca indipendenza, quiete e comfort, senza rinunciare alla comodità dei servizi.

Per ricevere ulteriori informazioni potete chiamare allo 0574.591473, mandarci un messaggio su WhatsApp al 3452579438 oppure venirci a trovare in Via Giuseppe Catani 31/E, Prato (PO).

Mostra tutto

Nelle vicinanze

Trasporto pubblico Trasporto pubblico
stazione di Prato Centrale
stazione di Prato Centrale
2,9 Km
Firenze 407
Firenze 407
180 m
Firenze 178
Firenze 178
340 m
Calenzano
Calenzano
890 m
Pratignone
Pratignone
2,4 Km
Ricariche auto elettriche Ricariche auto elettriche
Calenzano Cherzani | EnelX
2,6 Km
Scuole Scuole
Ilva Pacetti - Carlo Alberto dalla Chiesa
1,7 Km
Scuole
1,8 Km
Scuole Medie P. Cironi
1,9 Km
I.T.I.S. T. Buzzi
1,9 Km
Santagonda
2,2 Km
Farmacia Farmacia
Della Marina
1,2 Km
Farmacia di Mezzana
1,4 Km
Farmacia
2,2 Km
Parafarmacia E' Qui
2,4 Km
Balducci
2,6 Km
Supermercati Supermercati
Pam
1,7 Km
Conad Superstore
1,8 Km
Conad
2,2 Km
Carrefour Calenzano
2,4 Km
Incoop
2,8 Km
Negozi Negozi
Marina Militare sportswear
1,4 Km
Panificio Colzi
1,9 Km
Negozi
2,2 Km
Globo
2,4 Km
Nencini Sport 5
2,7 Km
Bar Bar
Miraglia Mood
1,2 Km
Circolo Arci Il Molino
1,6 Km
Bareostato
1,7 Km
Il nuovo molino
1,7 Km
RistoDisco Oca Fioca
1,7 Km
Ristoranti Ristoranti
Ristoranti
1,3 Km
Hua Qiao China Ristorante
1,4 Km
Il Sipario
1,4 Km
I 4 venti
1,5 Km
A tutta pizza - Pizza al taglio
1,6 Km
Mostra tutto

Caratteristiche

Rif.:
61155980
Piano:
1 di 2 (ultimo Piano)
Balconi:
2
Camere da letto:
2
Arredamento:
Assente
Condizionamento:
Autonomo
Mostra tutto
Prezzo Prezzo
€ 255.000
Rata mutuo Rata mutuo
€ 1.211 / mese
Spese annue Spese annue
€ 0
Proponi il tuo prezzoProponi il tuo prezzo

Classe Energetica

G
G
G
G
G
G
G
G
G
EP globale non rinnovabile:
54.20 kW h/m² anno
EP globale rinnovabile:
187.90 kW h/m² anno
EP invernale del fabbricato:
EP estiva del fabbricato:
Anno di costruzione:
1980
Riscaldamento:
Autonomo
Tipo impianto:
A radiatori
Tipo alimentazione:
Metano

Ti interessa visionare l'immobile?

Fissa un appuntamento  Fissa un appuntamento

Richiedi informazioni

Clicca su Leggi per aprire l'informativa
* Questi campi sono obbligatori

Calcola il tuo mutuo

Semplice e senza impegno
Anticipo

( % )
Mutuo

( % )

pochi semplici passi

inserisci i tuoi dati
Questionario completato
Grazie per aver richiesto un appuntamento senza impegno con un nostro Consulente del Credito e Assicurativo.

Hai inserito correttamente tutti i dati necessari e a breve riceverai una e-mail con un link da convalidare per inviare i tuoi dati.
Affiliato
Studio Mezzana - La Querce Snc
Via Catani, 31/E 59100 Prato (PO)

Il nostro staff


  • Giuseppe Cassarà
    Affiliato

  • Giuseppe Biscotti
    Affiliato

  • Gabriele Banci
    Responsabile
Via Catani, 31/E 59100 Prato (PO)
Zona: Mezzana - La Querce
Mostra su mappa
Orari: Da lunedì a venerdì 9:00 - 13:00 / 15:00 - 20:00; sabato 9:00 - 13:00 / 15:00 - 18:00
Affiliato
Studio Mezzana - La Querce Snc
Via Catani, 31/E 59100 Prato (PO)

2026 Tecnocasa Franchising S.p.A. - P. IVA 08365160152 - Via Monte Bianco 60/A 20089 Rozzano (MI). Ogni agenzia ha un proprio titolare ed è autonoma. Privacy policy | Policy utilizzo | Cookie policy