Casa semindipendente in vendita

Prato, Via Cellerese - La Querce
€ 145.000
3 locali 3 locali
60 Mq 60 Mq
1 bagno 1 bagno

Casa semindipendente in vendita

Prato, Via Cellerese - La Querce

Descrizione annuncio

La Querce - Via Cellerese

Proponiamo in vendita appartamento recentemente ristrutturato, privo di spese condominiali, vicino al verde della zona circostante, con ingresso indipednente.

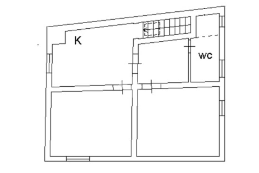
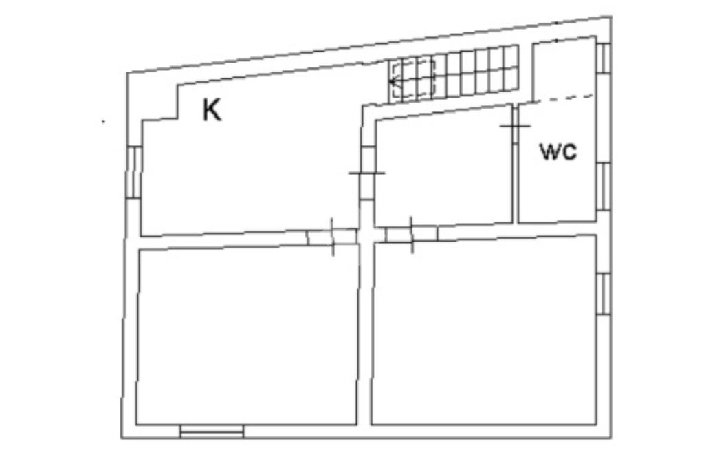
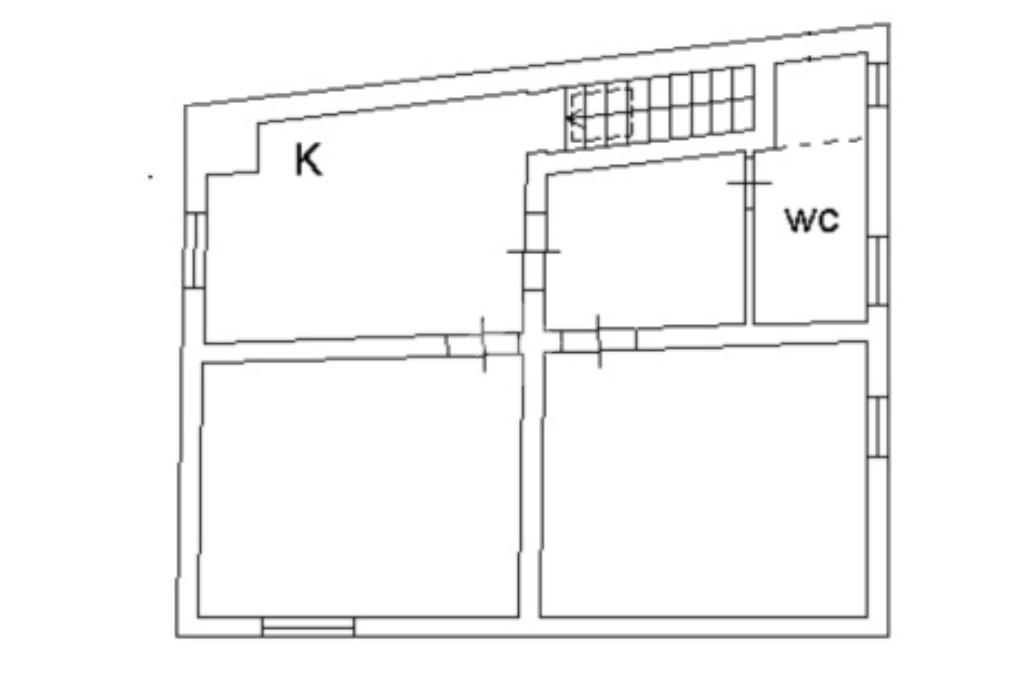
La zona giorno si apre sulla sala-cucina open space, un ambiente accogliente per godersi momenti di convivialità insieme ad amici e familiari.

La zona notte è formata da due camere da letto matrimoniale, oltre ad un bagno finestrato dotato di tutti i comfort e servizi necessari.

Un pratico disimpegno divide la zona giorno da quella notte, sfruttabile come spazio extra per una zona lavanderia.

Facendo parte di un più ampio fabbricato di sole due unità abitative, l'immobile non presenta spese condominiali. Termosingolo.

Aria condizionata.

Vicino all'appartamento si trova un ampio parco pubblico, un polmone verde che potrete sfruttare per allenarvi o godervi passeggiate all'aperto nelle giornate di sole.

Per ricevere ulteriori informazioni potete chiamare allo 0574.591473, mandarci un messaggio su WhatsApp al 3452579438 oppure venirci a trovare in Via Giuseppe Catani 31/E, Prato (PO).

Mostra tutto

Nelle vicinanze

Trasporto pubblico Trasporto pubblico
Firenze 493
Firenze 493
90 m
Pratese 56
Pratese 56
130 m
Calenzano
Calenzano
450 m
Pratignone
Pratignone
2,0 Km
Ricariche auto elettriche Ricariche auto elettriche
Calenzano Cherzani | EnelX
2,1 Km
Scuole Scuole
Design Campus
1,9 Km
Residenza Margherita Hack
2,0 Km
Ilva Pacetti - Carlo Alberto dalla Chiesa
2,1 Km
Scuole
2,2 Km
Scuole Medie P. Cironi
2,3 Km
Farmacia Farmacia
Della Marina
770 m
Farmacia di Mezzana
1,8 Km
Parafarmacia E' Qui
2,0 Km
Balducci
2,3 Km
Farmacia
2,7 Km
Supermercati Supermercati
Pam
1,4 Km
Conad
1,8 Km
Carrefour Calenzano
2,0 Km
Conad Superstore
2,2 Km
Incoop
2,4 Km
Negozi Negozi
Marina Militare sportswear
980 m
Nencini Sport 5
2,2 Km
Negozi
2,3 Km
Nencini Sport 2
2,4 Km
Panificio Colzi
2,4 Km
Bar Bar
Circolo Arci Il Molino
1,2 Km
Il nuovo molino
1,3 Km
Bareostato
1,4 Km
Miraglia Mood
1,6 Km
College Caffè
1,9 Km
Ristoranti Ristoranti
Ristoranti
860 m
I 4 venti
1,1 Km
A tutta pizza - Pizza al taglio
1,2 Km
Chiaroscuro
1,4 Km
Roadhouse
1,4 Km
Mostra tutto

Caratteristiche

Rif.:
61144145
Piano:
1 di 2 (ultimo Piano)
Camere da letto:
2
Arredamento:
Assente
Condizionamento:
Autonomo
Ascensore:
No
Mostra tutto
Prezzo Prezzo
€ 145.000
Rata mutuo Rata mutuo
€ 683 / mese
Spese annue Spese annue
€ 0
Proponi il tuo prezzoProponi il tuo prezzo

Classe Energetica

F
F
F
F
F
F
F
F
F
EP globale non rinnovabile:
74.80 kW h/m² anno
EP globale rinnovabile:
136.20 kW h/m² anno
EP invernale del fabbricato:
EP estiva del fabbricato:
Anno di costruzione:
1950
Riscaldamento:
Autonomo
Tipo impianto:
A radiatori
Tipo alimentazione:
Metano

Ti interessa visionare l'immobile?

Fissa un appuntamento  Fissa un appuntamento

Richiedi informazioni

Clicca su Leggi per aprire l'informativa
* Questi campi sono obbligatori

Calcola il tuo mutuo

Semplice e senza impegno
Anticipo

( % )
Mutuo

( % )

pochi semplici passi

inserisci i tuoi dati
Questionario completato
Grazie per aver richiesto un appuntamento senza impegno con un nostro Consulente del Credito e Assicurativo.

Hai inserito correttamente tutti i dati necessari e a breve riceverai una e-mail con un link da convalidare per inviare i tuoi dati.
Affiliato
Studio Mezzana - La Querce Snc
Via Catani, 31/E 59100 Prato (PO)

Il nostro staff


  • Giuseppe Cassarà
    Affiliato

  • Giuseppe Biscotti
    Affiliato

  • Gabriele Banci
    Responsabile
Via Catani, 31/E 59100 Prato (PO)
Zona: Mezzana - La Querce
Mostra su mappa
Orari: Da lunedì a venerdì 9:00 - 13:00 / 15:00 - 20:00; sabato 9:00 - 13:00 / 15:00 - 18:00
Affiliato
Studio Mezzana - La Querce Snc
Via Catani, 31/E 59100 Prato (PO)

2026 Tecnocasa Franchising S.p.A. - P. IVA 08365160152 - Via Monte Bianco 60/A 20089 Rozzano (MI). Ogni agenzia ha un proprio titolare ed è autonoma. Privacy policy | Policy utilizzo | Cookie policy