Quadrilocale in vendita

Prato, Via Firenze - La Querce
€ 199.000
4 locali 4 locali
95 Mq 95 Mq
1 bagno 1 bagno

Quadrilocale in vendita

Prato, Via Firenze - La Querce

Descrizione annuncio

La Querce – Via Firenze

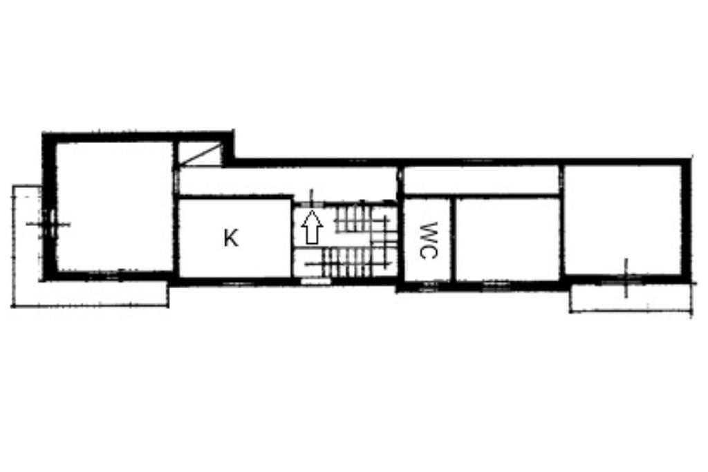
In tranquilla zona residenziale, ben collegata e vicina a tutti i principali servizi, proponiamo in vendita luminoso appartamento di 4 vani posto al secondo piano, senza ascensore, di una piccola palazzina composta da soli tre appartamenti, caratteristica che garantisce basse spese condominiali e un contesto riservato.

L’immobile si distingue per la doppia esposizione, che assicura ambienti ariosi e ottimamente illuminati durante tutto l’arco della giornata. L’ingresso conduce alla zona giorno, composta da un accogliente soggiorno con accesso diretto al balcone, ideale per momenti di relax, e da una cucina abitabile, spaziosa e funzionale, perfetta per la vita quotidiana e per chi ama ricevere ospiti.

La zona notte è ben distribuita e comprende una camera matrimoniale, anch’essa dotata di balcone privato, una camera media e il bagno finestrato. La presenza di due balconi, uno sulla zona giorno e uno sulla camera matrimoniale, rappresenta un valore aggiunto che aumenta la vivibilità dell’abitazione.

Per ricevere ulteriori informazioni potete chiamare allo 0574.591473, mandarci un messaggio su WhatsApp al 3452579438 oppure venirci a trovare in Via Giuseppe Catani 31/E, Prato (PO).

Mostra tutto

Nelle vicinanze

Trasporto pubblico Trasporto pubblico
Firenze 493
Firenze 493
80 m
Pratese 56
Pratese 56
120 m
Calenzano
Calenzano
460 m
Pratignone
Pratignone
2,0 Km
Ricariche auto elettriche Ricariche auto elettriche
Calenzano Cherzani | EnelX
2,1 Km
Scuole Scuole
Design Campus
1,9 Km
Residenza Margherita Hack
2,0 Km
Ilva Pacetti - Carlo Alberto dalla Chiesa
2,1 Km
Scuole
2,2 Km
Scuole Medie P. Cironi
2,3 Km
Farmacia Farmacia
Della Marina
770 m
Farmacia di Mezzana
1,8 Km
Parafarmacia E' Qui
2,0 Km
Balducci
2,3 Km
Farmacia
2,7 Km
Supermercati Supermercati
Pam
1,4 Km
Conad
1,8 Km
Carrefour Calenzano
2,0 Km
Conad Superstore
2,2 Km
Incoop
2,4 Km
Negozi Negozi
Marina Militare sportswear
990 m
Nencini Sport 5
2,2 Km
Negozi
2,3 Km
Nencini Sport 2
2,3 Km
Panificio Colzi
2,4 Km
Bar Bar
Circolo Arci Il Molino
1,2 Km
Il nuovo molino
1,3 Km
Bareostato
1,4 Km
Miraglia Mood
1,6 Km
College Caffè
1,9 Km
Ristoranti Ristoranti
Ristoranti
860 m
I 4 venti
1,1 Km
A tutta pizza - Pizza al taglio
1,2 Km
Chiaroscuro
1,4 Km
Roadhouse
1,5 Km
Mostra tutto

Caratteristiche

Rif.:
61172515
Piano:
2 di 2 (Piano medio)
Balconi:
2
Camere da letto:
2
Arredamento:
Assente
Condizionamento:
Autonomo
Mostra tutto
Prezzo Prezzo
€ 199.000
Rata mutuo Rata mutuo
€ 945 / mese
Spese annue Spese annue
€ 150
Proponi il tuo prezzoProponi il tuo prezzo

Classe Energetica

G
G
G
G
G
G
G
G
G
EP globale non rinnovabile:
77.90 kW h/m² anno
EP globale rinnovabile:
156.80 kW h/m² anno
EP invernale del fabbricato:
EP estiva del fabbricato:
Anno di costruzione:
1970
Riscaldamento:
Autonomo
Tipo impianto:
A radiatori
Tipo alimentazione:
Metano

Ti interessa visionare l'immobile?

Fissa un appuntamento  Fissa un appuntamento

Richiedi informazioni

Clicca su Leggi per aprire l'informativa
* Questi campi sono obbligatori

Calcola il tuo mutuo

Semplice e senza impegno
Anticipo

( % )
Mutuo

( % )

pochi semplici passi

inserisci i tuoi dati
Questionario completato
Grazie per aver richiesto un appuntamento senza impegno con un nostro Consulente del Credito e Assicurativo.

Hai inserito correttamente tutti i dati necessari e a breve riceverai una e-mail con un link da convalidare per inviare i tuoi dati.
Affiliato
Studio Mezzana - La Querce Snc
Via Catani, 31/E 59100 Prato (PO)

Il nostro staff


  • Giuseppe Cassarà
    Affiliato

  • Giuseppe Biscotti
    Affiliato

  • Gabriele Banci
    Responsabile
Via Catani, 31/E 59100 Prato (PO)
Zona: Mezzana - La Querce
Mostra su mappa
Orari: Da lunedì a venerdì 9:00 - 13:00 / 15:00 - 20:00; sabato 9:00 - 13:00 / 15:00 - 18:00
Affiliato
Studio Mezzana - La Querce Snc
Via Catani, 31/E 59100 Prato (PO)

2026 Tecnocasa Franchising S.p.A. - P. IVA 08365160152 - Via Monte Bianco 60/A 20089 Rozzano (MI). Ogni agenzia ha un proprio titolare ed è autonoma. Privacy policy | Policy utilizzo | Cookie policy