5 locali in vendita

Prato, Via Lorenzo Valla - Mezzana
€ 255.000
Prezzo aggiornato
5 locali 5 locali
145 Mq 145 Mq
1 bagno 1 bagno

5 locali in vendita

Prato, Via Lorenzo Valla - Mezzana

Descrizione annuncio

Mezzana - Via Lorenzo Valla

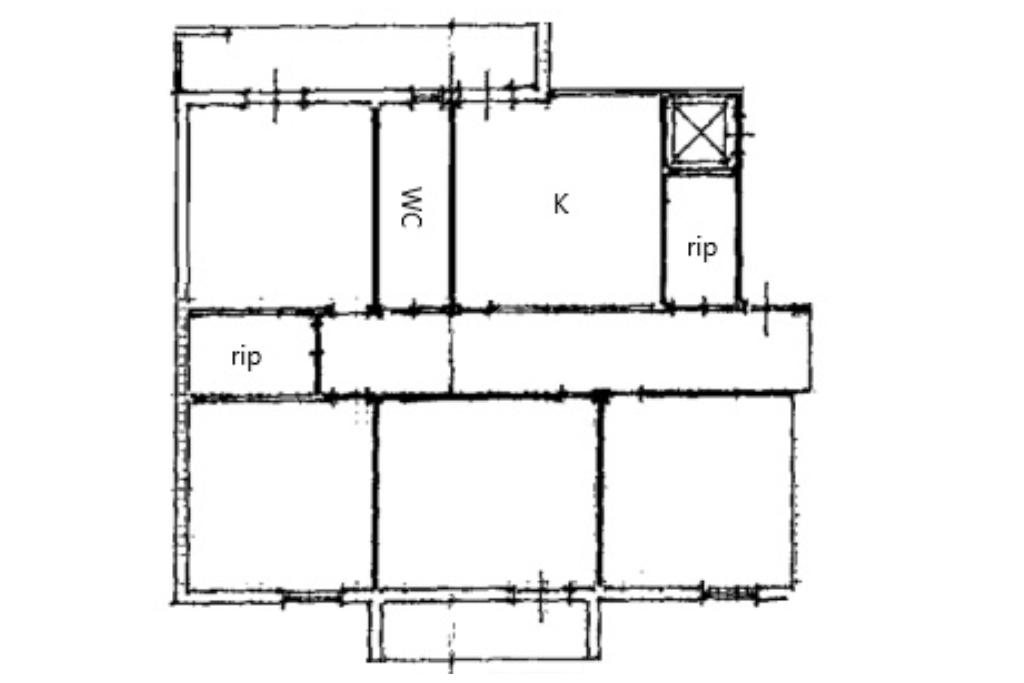
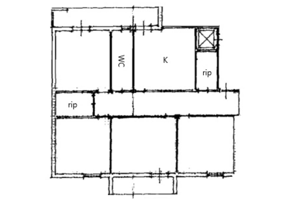
Vicino ai principali servizi della zona proponiamo in vendita un appartamento posto al secondo ed ultimo piano di un edificio servito da ascensore e composto da sole quattro unità abitative.

La zona giorno è formata è composto dall'ampia cucina abitabile, dotata di un pratico ripostiglio e con accesso ad un balcone, utile come lavanderia o per stendere i panni. Completa la zona giorno una sala, ideale per godersi momenti di relax in compagnia di amici e familiari, illuminata dalla luce naturale grazie alla portafinestra che conduce ad un ampio balcone.

La zona notte è formata da tre camera da letto matrimoniali, oltre ad un bagno finestrato dotato di tutti i comfort e servizi. Completa la zona notte un ripostiglio, trasformabile in secondo bagno.

Completano la poposta un garage e una cantina posti al piano seminterrato.

Dotato di impianto di riscaldamento autonomo e aria condizionata, l’immobile garantisce il massimo comfort abitativo in ogni stagione.

Per ricevere ulteriori informazioni potete chiamare allo 0574.591473, mandarci un messaggio su WhatsApp al 3452579438 oppure venirci a trovare in Via Giuseppe Catani 31/E, Prato (PO).

Mostra tutto

Nelle vicinanze

Trasporto pubblico Trasporto pubblico
stazione di Prato Centrale
stazione di Prato Centrale
2,1 Km
Vannucchi Sn
Vannucchi Sn
20 m
Ferrucci 520
Ferrucci 520
100 m
Calenzano
Calenzano
2,2 Km
Ricariche auto elettriche Ricariche auto elettriche
GMG SPA Concessionaria Mercedes Benz | EnelX
2,1 Km
Estra Martini
2,3 Km
Estra Sede
2,5 Km
Estra Mercatale
2,5 Km
Estra Parcheggio Piazza dei Macelli
2,9 Km
Scuole Scuole
Ilva Pacetti - Carlo Alberto dalla Chiesa
370 m
Scuole
410 m
Scuole Medie P. Cironi
920 m
Santagonda
1,1 Km
I.T.I.S. T. Buzzi
1,1 Km
Farmacia Farmacia
Farmacia di Mezzana
10 m
Farmacia
1,2 Km
Farmacia Lloyds
1,7 Km
Farmacia Carbone
2,1 Km
Parafarmacia La stazione
2,1 Km
Ospedali Ospedali
Studi medici di famiglia
2,8 Km
Studi medici Pediatri
2,9 Km
Supermercati Supermercati
Conad Superstore
450 m
Sigma
1,5 Km
Pam
1,7 Km
Esselunga Superstore
1,8 Km
Penny Market
1,8 Km
Negozi Negozi
Panificio Colzi
750 m
Globo
990 m
Negozi
1,2 Km
Ciesse Casual
1,9 Km
Innocenti
2,3 Km
Bar Bar
Miraglia Mood
310 m
RistoDisco Oca Fioca
610 m
Bar Muretto
630 m
Bar Tazza d'Oro
810 m
bar in famiglia Hangar cafè prato
930 m
Ristoranti Ristoranti
Hua Qiao China Ristorante
70 m
Sporting club Mezzana
470 m
Yammy Wok
650 m
MYO Ristorante
750 m
Roadhouse
950 m
Mostra tutto

Caratteristiche

Rif.:
61132747
Piano:
2 di 2 con ascensore (ultimo Piano)
Box:
1
Balconi:
2
Camere da letto:
3
Arredamento:
Assente
Mostra tutto
Prezzo Prezzo
€ 255.000
Rata mutuo Rata mutuo
€ 1.188 / mese
Spese annue Spese annue
€ 1.200
Proponi il tuo prezzoProponi il tuo prezzo
Immobile valutato con T·Valuta

Classe Energetica

G
G
G
G
G
G
G
G
G
EP globale non rinnovabile:
70.83 kW h/m² anno
EP globale rinnovabile:
186.95 kW h/m² anno
EP invernale del fabbricato:
EP estiva del fabbricato:
Anno di costruzione:
1980
Riscaldamento:
Autonomo
Tipo impianto:
A radiatori
Tipo alimentazione:
Metano

Prezzo ridotto di €1 (9%%)

Ti interessa visionare l'immobile?

Fissa un appuntamento  Fissa un appuntamento

Richiedi informazioni

Clicca su Leggi per aprire l'informativa
* Questi campi sono obbligatori

Calcola il tuo mutuo

Semplice e senza impegno
Anticipo

( % )
Mutuo

( % )

pochi semplici passi

inserisci i tuoi dati
Questionario completato
Grazie per aver richiesto un appuntamento senza impegno con un nostro Consulente del Credito e Assicurativo.

Hai inserito correttamente tutti i dati necessari e a breve riceverai una e-mail con un link da convalidare per inviare i tuoi dati.
Affiliato
Studio Mezzana - La Querce Snc
Via Catani, 31/E 59100 Prato (PO)

Il nostro staff


  • Giuseppe Cassarà
    Affiliato

  • Giuseppe Biscotti
    Affiliato

  • Gabriele Banci
    Responsabile
Via Catani, 31/E 59100 Prato (PO)
Zona: Mezzana - La Querce
Mostra su mappa
Orari: Da lunedì a venerdì 9:00 - 13:00 / 15:00 - 20:00; sabato 9:00 - 13:00 / 15:00 - 18:00
Affiliato
Studio Mezzana - La Querce Snc
Via Catani, 31/E 59100 Prato (PO)

2025 Tecnocasa Franchising S.p.A. - P. IVA 08365160152 - Via Monte Bianco 60/A 20089 Rozzano (MI). Ogni agenzia ha un proprio titolare ed è autonoma. Privacy policy | Policy utilizzo | Cookie policy